Skip To Content

3632 Lake Lynn Drive

Gretna, LA 70056
  • $425,000
  • STATUS: Active Under Contract
  • ON SITE: 16 Days
  • ID#: 2539605
Under Contract
$425,000
  • 4
    BEDS
  • N/A
    ACRES
  • 2
    BATHS
  • 2
    1/2 BATHS
  • 2,284
    SQFT
  • $186
    $/SQFT
Type:
Single-Family Home
Built:
1987
County:

School Ratings & Info

Description

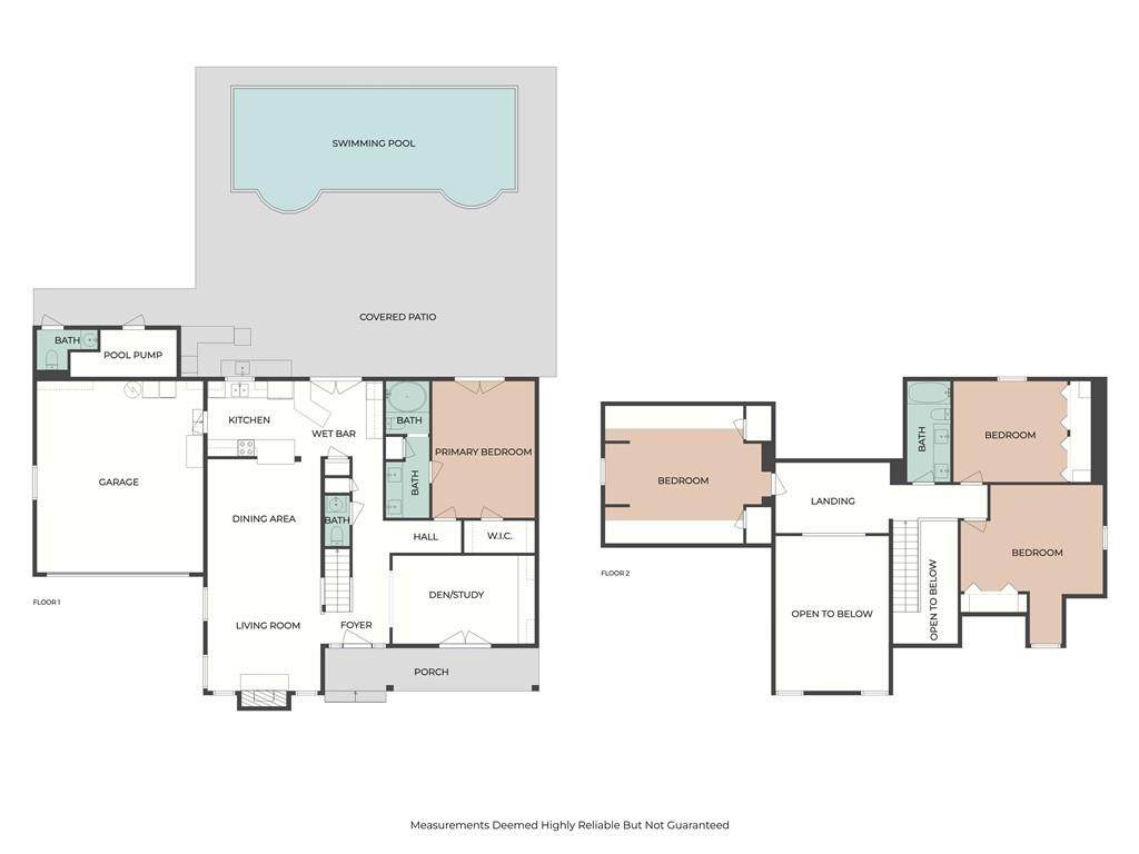
Here’s your opportunity to relax on your back patio overlooking a sparkling pool, a peaceful pond, and the 12th hole of Stonebridge Golf Course. This move-in ready 4-bedroom, 2.5-bath home is designed for comfort and style.The floor plan offers two spacious living areas, including a vaulted great room filled with natural light. The chic kitchen is perfect for everyday living and entertaining. Step outside to the expansive hardscaped patio with a generously sized pool — an ideal spot for hosting friends or enjoying quiet evenings.The primary suite is a true retreat, complete with dual vanities and private doors leading directly to your covered poolside patio. Additional highlights include a two-car garage, two brand-new A/C units for efficiency and peace of mind, and low-maintenance living throughout.This turnkey home is a stunner — schedule your showing today!

Monthly Payment Calculator



Broker and Associates are licensed in the State of Louisiana, USA.
The Fields Group | Keller Williams Realty Premier Partners || 225-664-1911 || Denham Springs, LA.

Terms & Conditions
© 2026 Gulf South Real Estate Information Network. All rights reserved. IDX information is provided exclusively for consumers' personal, non-commercial use and may not be used for any purpose other than to identify prospective properties consumers may be interested in purchasing. Information is deemed reliable but is not guaranteed accurate by the MLS or The Fields Group | Keller Williams Realty Premier Partners. Data last updated: 2026-02-07T23:34:45.653.
www.thefieldsgroupla.com/homes/172400835
Print Image

3632 Lake Lynn Drive Gretna, LA 70056

  • Price: $425,000
  • Status: Active Under Contract
  • On Site: 16 Days
  • ID#: 2539605
4
Beds
2
Baths
2
½ Baths
N/A
Acres
2,284
SQFT
$186
$/SQFT
1987
Built
County:
Jefferson
Property Description
Here’s your opportunity to relax on your back patio overlooking a sparkling pool, a peaceful pond, and the 12th hole of Stonebridge Golf Course. This move-in ready 4-bedroom, 2.5-bath home is designed for comfort and style.The floor plan offers two spacious living areas, including a vaulted great room filled with natural light. The chic kitchen is perfect for everyday living and entertaining. Step outside to the expansive hardscaped patio with a generously sized pool — an ideal spot for hosting friends or enjoying quiet evenings.The primary suite is a true retreat, complete with dual vanities and private doors leading directly to your covered poolside patio. Additional highlights include a two-car garage, two brand-new A/C units for efficiency and peace of mind, and low-maintenance living throughout.This turnkey home is a stunner — schedule your showing today!
Exterior Features

Construction Materials Brick Exterior Features FenceOutdoor ShowerPorchPatio Foundation Details Slab Garage YN Yes Lot Features City LotRectangular Lot Lot Size Dimensions 85x125 Other Structures Shed(s) Parking Features GarageOff StreetThree or more Spaces Patio And Porch Features CoveredPaversPatioPorch Pool Features In Ground Roof Shingle Spa YN No

Interior Features

Appliances DryerDishwasherDisposalMicrowaveOvenRangeRefrigeratorWasher Building Area Total 4080 Cooling Central Air2 Units Fireplace Features Gas Fireplace YN Yes Heating CentralMultiple Heating Units Heating YN Yes Interior Features Ceiling Fan(s)Cathedral Ceiling(s)Granite CountersHigh CeilingsVaulted Ceiling(s) Laundry Features Washer HookupDryer Hookup

Property Features

Architectural Style Acadian Association Fee 50 Association Fee Frequency Annually Association YN Yes Cooling YN Yes Home Warranty YN No Levels Two Property Condition Very Good Condition Property Sub Type Detached Restrictions Sewer Public Sewer Special Listing Conditions None Watersource Public

Gulf South Real Estate Information Network Listing courtesy of Gulf South Real Estate Information Network.
Listing provided courtesy of John Hendrix of Remax Crescent Collective LLC: (504) 226-7629.



Broker and Associates are licensed in the State of Louisiana, USA.
The Fields Group | Keller Williams Realty Premier Partners || 225-664-1911 || Denham Springs, LA.

Terms & Conditions
© 2026 Gulf South Real Estate Information Network. All rights reserved. IDX information is provided exclusively for consumers' personal, non-commercial use and may not be used for any purpose other than to identify prospective properties consumers may be interested in purchasing. Information is deemed reliable but is not guaranteed accurate by the MLS or The Fields Group | Keller Williams Realty Premier Partners. Data last updated: 2026-02-07T23:34:45.653.
 
https://bt-photos.global.ssl.fastly.net/neworleans/orig_boomver_1_2539605-2.jpg https://bt-photos.global.ssl.fastly.net/neworleans/orig_boomver_1_2539605-2.jpg https://bt-photos.global.ssl.fastly.net/neworleans/orig_boomver_1_2539605-2.jpg
Logo
The Fields Group | Keller Williams Realty Premier Partners
291 Veterans Ave
Denham Springs LA, 70726